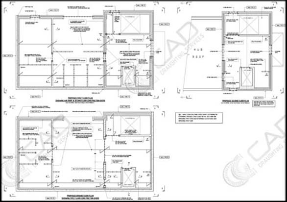
PARK & RIDE TRANSPORT HUB

GCCAD had the pleasure of working on this inner city project, which was an important part of the "Sustainable Transport Strategy". Situated near a busy traffic junction, the Park & Ride is ideally located to attract people driving from places both east and north of the city, and plays a vital role in reducing traffic and air pollution in the area. Working directly with a structural engineering consultancy (and in liaison with architects & the local council), we drafted the structural drawings for the Hub Building and site retaining walls. Please click an image below to enlarge. Whilst viewing, click on the left or right of an image to navigate backwards or forwards respectively. Please note that the images have been compressed and presented as .JPG files for web viewing only. As standard, GCCAD would issue 2D work to an accurate scale on a drawing sheet in .PDF or .DWG / .DXF format.

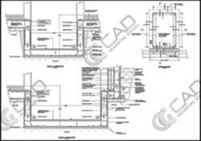
This project goes great lengths in demonstrating our experience with RC detailing; the retaining walls and even the hub building itself were constructed from reinforced concrete. For the hub building, GCCAD drafted structural plans for all levels, including details for the walls, lintels and reinforced concrete floor slabs. We also produced a full set of structural details, including the lift pit.

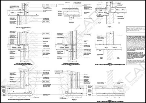
Major external works had to be undertaken in order to construct the car park. Large retaining walls were required, some of which were up to 70 metres in length, broken up into smaller sections separated by movement joints. GCCAD was responsible for drafting sections through the walls, as well as elevations & plans for the full extent of each wall. These drawings contained a wealth of steelwork reinforcement information which, along with reinforcement schedules, had to be organised and presented in a clear and concise manner (see the third image above).